3+1 OSTRAVA PORUBA, ul. Opavská
s balkónem a dvěma lodžiemi
s balkónem a dvěma lodžiemi
Nabídka bytu 3+1 s balkónem a dvěma lodžiemi – Ostrava-Poruba, ul. Opavská 1125
Už při vstupu do tohoto bytu ucítíte příjemnou lehkost prostoru a světla. Deváté patro přináší jedinečný pocit soukromí a otevřených výhledů, které se jen tak neomrzí. Dvě lodžie a balkón doslova propojují interiér s oblohou a dodávají každému dni nádech výjimečnosti.
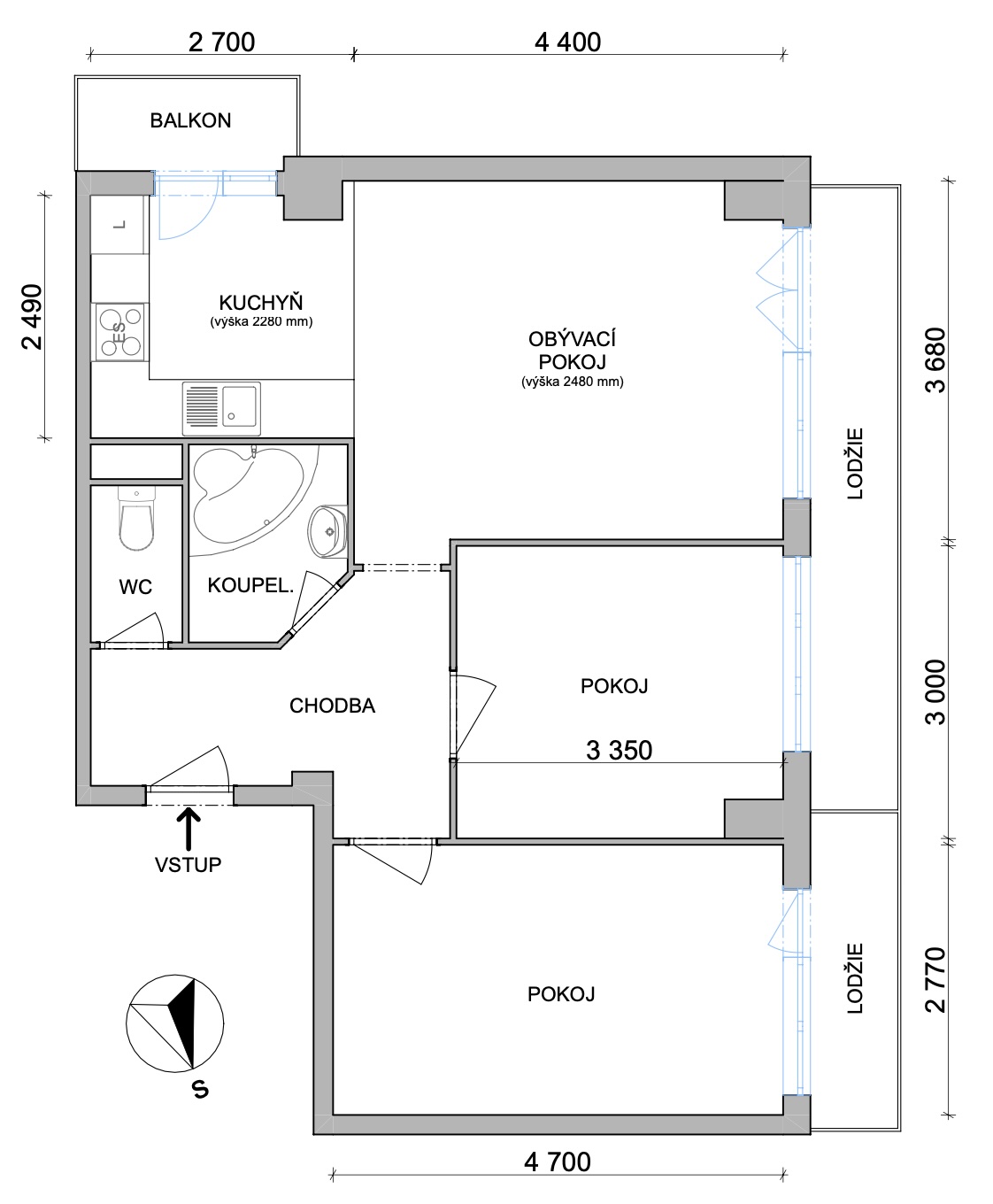
Byt o velikosti 60,1 m² (balkón 2 m², dvě lodžie 12 m²) vás přivítá vzdušným obývacím prostorem, který plynule navazuje na kuchyň – ideální místo pro rodinné večeře i večerní relax. Vyzděná koupelna, elektřina v mědi a udržovaný stav celého bytu umožní okamžité bydlení bez nutnosti zásadních úprav. Zasklené lodžie se stanou vašimi oblíbenými místy – ať už pro klidné ráno s kávou, nebo malou domácí zahrádku.
Velkou výhodou je bezbariérový přístup – nová rampa a dva prostorné výtahy, které zastavují přímo na patře – komfort, jaký si zasloužíte. Dům prošel kompletní revitalizací: zateplení, plastová okna, moderní vstupy, nové schránky i výtahy. Parkování přímo u domu zajistí bezstarostný denní život.
Lokalita – Poruba, Ostrava
Žijte v jedné z nejžádanějších částí Ostravy. Poruba nabízí ideální prostředí – klid v zeleni, výbornou dostupnost města a kompletní občanskou vybavenost. V těsné blízkosti najdete mateřské a základní školy, střední i renomovanou vysokou školu Vysoká škola báňská – Technická univerzita Ostrava (VŠB-TUO) – což z něj činí i atraktivní investiční moment. Nákupní centra, zdravotnická zařízení, sportovní vyžití – krytý bazén, zimní stadion – vše na dosah ruky.
Zde nejde jen o bydlení — jde o život plný výhod, komfortu a výhledu, který vás bude každý den těšit.
Byt je v osobním vlastnictví a financování hypotečním úvěrem je možné – rádi vám s tím pomůžeme.
KUPNÍ CENA 4.199.000,-Kč



Ing. Lokosová Renáta
FALCON REALITY
Svornosti 2, Havířov Město (Magistrát města Havířova, budova H)
tel: 774 741 666
www.falconreality.cz
www.lokosovarenata.cz
Cena nemovitosti není to, co prodává, pomůžu vám najít její skutečnou hodnotu.
Jmenuji se Renáta Lokosová a do oblasti realit jsem pronikla v roce 2004 s jasnou vizí - prodávat nemovitosti s úctou k zákazníkovi a osobním přístupem. Tato cesta se ukázala jako klíčová ve všech oblastech realitních služeb.
Zaměřuji se na Moravskoslezský kraj, ráda se s vámi potkám v mé kanceláři v Havířově, ale působím v rámci celé České republiky nejen jako makléřka, ale i na odborných konferencích.
S důvěrou se na mě můžete obrátit při prodeji vaší nemovitosti, případně s jakoukoliv její etapou. Pomůžu vám s odhadem ceny nemovitosti, znaleckým posudkem, energetickým průkazem, profesionální prezentací vaší nemovitosti při prodeji - nafocení profesionálním fotografem a s tím související home stagingem, videoprezentací s možností záběrů z dronu.
Díky 3D scanu je možné navštívit nemovitost formou virtuální prohlídky a následné kroky vedoucí k prodeji je možné také zajistit vzdáleně. Tuto službu, kompletně bezkontaktního prodeje, nebo nákupu nemovitosti využívají i klienti ze zahraničí.
Chcete vědět víc o světě nemovitostí přečtětě si mé články.
Reference mých klientů jsou pro mě skvělou zprávou o tom, že profesionální přístup, při kterém si zakládám na svém dobrém jménu a pověsti, skutečně funguje.
Jestli stále váháte, pojďme si krátce zavolat. Minimálně získáte můj názor a nový pohled na vaši nemovitost.