Byt 3+1 s garáží v Havířově – místo, kde začíná váš nový domov
Hledáte bydlení, kde se budete cítit opravdu doma? Místo, kam se budete rádi vracet po práci, kde děti najdou bezpečný prostor pro hraní a vy klid pro odpočinek?
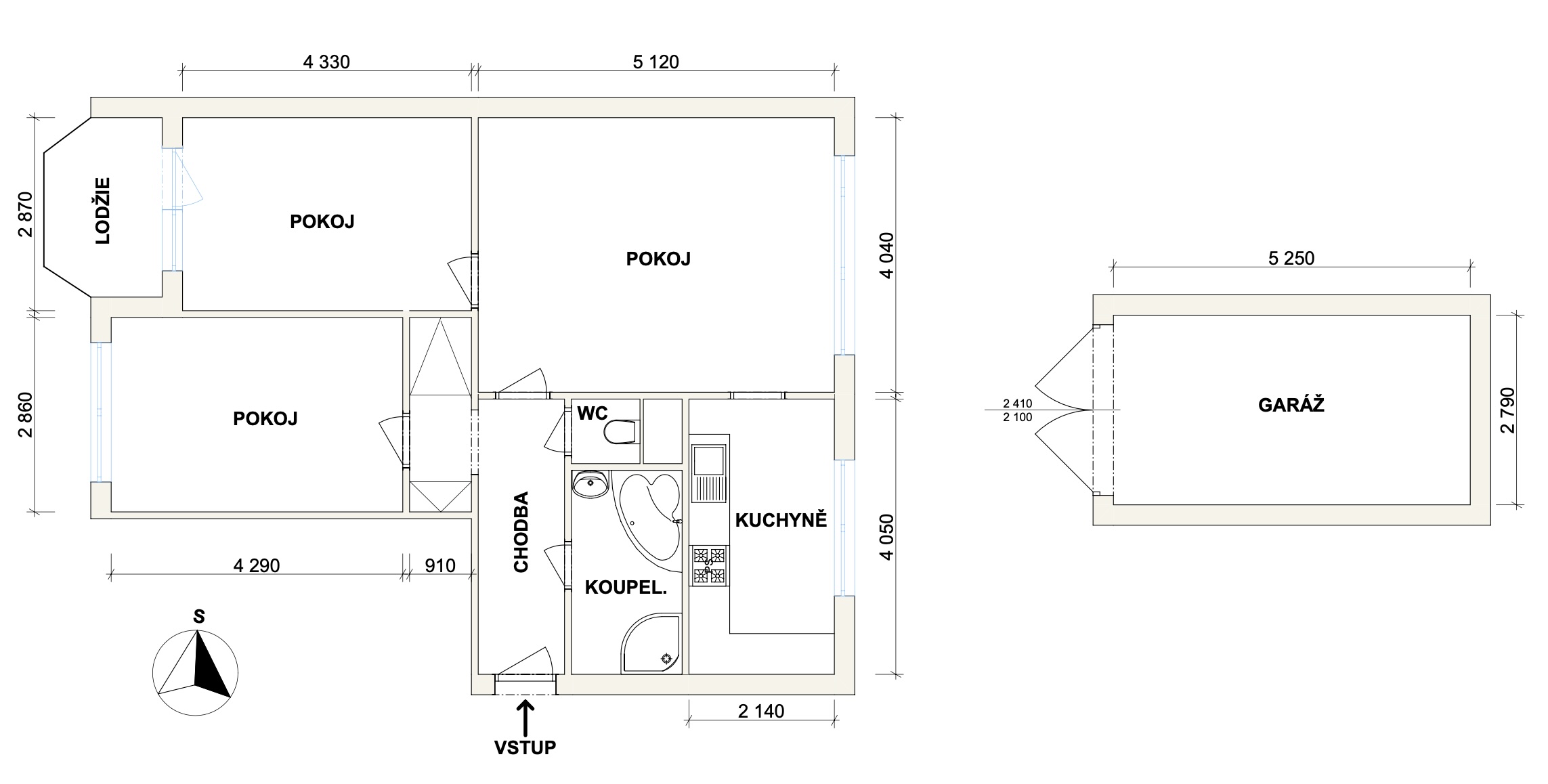
Tento družstevní byt 3+1 o velikosti 68,04 m² s družstevní garáží přímo v domě (18,6 m²) může být právě tím.
Nachází se ve 3. patře nízké třípatrové zástavby, obklopené zelení a klidem.
Byt prošel před lety kompletní rekonstrukcí, díky které nabízí zděné jádro, elektroinstalaci v mědi a rozvody kabelem UTP v každém pokoji – tedy dobrý základ pro moderní rodinné bydlení.
Kuchyně s rohovou linkou a vestavěnými spotřebiči působí útulně a funkčně, a prostorná prosklená lodžie vás doslova zve k ranní kávě s výhledem do přírody.
Byt je v udržovaném stavu a čeká na nové majitele, kteří mu vtisknou svůj vlastní styl a nový život.
Velkým bonusem je garáž přímo v domě, vybavená elektřinou a podružným elektroměrem.
Lokalita vás nadchne svou pohodou i dostupností. Jen pár kroků od domu je autobusová zastávka, přes cestu nové nákupní středisko, a škola i školka jsou v bezpečné docházkové vzdálenosti.
Pro víkendové procházky nebo sportování je tu lesopark za rohem.
Ať už pracujete v Havířově, Ostravě, Petřvaldu nebo Karviné, oceníte skvělou dopravní dostupnost – všude jste za pár minut.
Tento byt nabízí ideální kombinaci – klidné prostředí, pohodlné parkování, a možnost vytvořit si domov podle svých představ.
Zavolejte mi a domluvte si prohlídku. Ráda vás bytem provedu a ukážu vám, jak příjemné může být bydlení právě tady.
A pokud budete potřebovat pomoc s vyřízením financování, ráda vše zajistím.
velikost bytu: 68,04 m²
velikost garáže: 18,6 m²
měsíční náklady byt: 6.524,-Kč
měsíční náklady garáž: 694,-Kč
KUPNÍ CENA 2.600.000,-Kč



Ing. Lokosová Renáta
FALCON REALITY
Svornosti 2, Havířov Město (Magistrát města Havířova, budova H)
tel: 774 741 666
www.falconreality.cz
www.lokosovarenata.cz
Cena nemovitosti není to, co prodává, pomůžu vám najít její skutečnou hodnotu.
Jmenuji se Renáta Lokosová a do oblasti realit jsem pronikla v roce 2004 s jasnou vizí - prodávat nemovitosti s úctou k zákazníkovi a osobním přístupem. Tato cesta se ukázala jako klíčová ve všech oblastech realitních služeb.
Zaměřuji se na Moravskoslezský kraj, ráda se s vámi potkám v mé kanceláři v Havířově, ale působím v rámci celé České republiky nejen jako makléřka, ale i na odborných konferencích.
S důvěrou se na mě můžete obrátit při prodeji vaší nemovitosti, případně s jakoukoliv její etapou. Pomůžu vám s odhadem ceny nemovitosti, znaleckým posudkem, energetickým průkazem, profesionální prezentací vaší nemovitosti při prodeji - nafocení profesionálním fotografem a s tím související home stagingem, videoprezentací s možností záběrů z dronu.
Díky 3D scanu je možné navštívit nemovitost formou virtuální prohlídky a následné kroky vedoucí k prodeji je možné také zajistit vzdáleně. Tuto službu, kompletně bezkontaktního prodeje, nebo nákupu nemovitosti využívají i klienti ze zahraničí.
Chcete vědět víc o světě nemovitostí přečtětě si mé články.
Reference mých klientů jsou pro mě skvělou zprávou o tom, že profesionální přístup, při kterém si zakládám na svém dobrém jménu a pověsti, skutečně funguje.
Jestli stále váháte, pojďme si krátce zavolat. Minimálně získáte můj názor a nový pohled na vaši nemovitost.