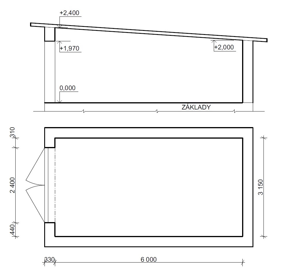
Ve výhradním zastoupení majitele nabízíme dlouhodobý pronájem řadové garáže v osobním vlastnictví v Havířově Podlesí na ul. Studentské. Garáž je umístěná v první řadě. Garáž má výměru 23 m² (vnitřní rozměr 3,15 x 6 m, výška stropu 2,4 – 2 m), dvoukřídlá garážové vrata šíře 2,4 x výška 1,97 m, mají 4 zámky.
V garáži je zavedená elektřina s podružným měřením, je zde osvětlení a elektrická zásuvka. Garáž je, suchá. Měsíční nájem 2700,- Kč + elektřina – běžná spotřeba cca 200 Kč ročně, vratná dvouměsíční kauce, poplatek za zprostředkování se neplatí. Bezpečné místo. Pronájem pouze pro slušné a solventní nájemníky. Pronajímatel si vyhrazuje právo vybrat nájemce na základě jím zvolených kritérií. Garáž je k dispozici ihned. Prohlídky jsou možné po dohodě s makléřem.
Celková velikost 23 m2
Vnitřní rozměr garáže je 6m x 3,15m
výška stropu 2,4 – 2 m
Šířka vrat 2,40 m
Výška vrat 1,97 m

Ing. Lokosová Renáta
FALCON REALITY
Svornosti 2, Havířov Město (Magistrát města Havířova, budova H)
tel: 774 741 666
www.falconreality.cz
www.lokosovarenata.cz
Cena nemovitosti není to, co prodává, pomůžu vám najít její skutečnou hodnotu.
Jmenuji se Renáta Lokosová a do oblasti realit jsem pronikla v roce 2004 s jasnou vizí - prodávat nemovitosti s úctou k zákazníkovi a osobním přístupem. Tato cesta se ukázala jako klíčová ve všech oblastech realitních služeb.
Zaměřuji se na Moravskoslezský kraj, ráda se s vámi potkám v mé kanceláři v Havířově, ale působím v rámci celé České republiky nejen jako makléřka, ale i na odborných konferencích.
S důvěrou se na mě můžete obrátit při prodeji vaší nemovitosti, případně s jakoukoliv její etapou. Pomůžu vám s odhadem ceny nemovitosti, znaleckým posudkem, energetickým průkazem, profesionální prezentací vaší nemovitosti při prodeji - nafocení profesionálním fotografem a s tím související home stagingem, videoprezentací s možností záběrů z dronu.
Díky 3D scanu je možné navštívit nemovitost formou virtuální prohlídky a následné kroky vedoucí k prodeji je možné také zajistit vzdáleně. Tuto službu, kompletně bezkontaktního prodeje, nebo nákupu nemovitosti využívají i klienti ze zahraničí.
Chcete vědět víc o světě nemovitostí přečtětě si mé články.
Reference mých klientů jsou pro mě skvělou zprávou o tom, že profesionální přístup, při kterém si zakládám na svém dobrém jménu a pověsti, skutečně funguje.
Jestli stále váháte, pojďme si krátce zavolat. Minimálně získáte můj názor a nový pohled na vaši nemovitost.