Představte si místo, kde se moderní architektura potkává s klidem přírody. Kde máte dostatek soukromí, prostor pro rodinu i zázemí, které odpovídá nárokům dnešního života.
Právě takový je tento zděný rodinný dům – kvalitní novostavba v Těrlicku, místní části Kostelec.
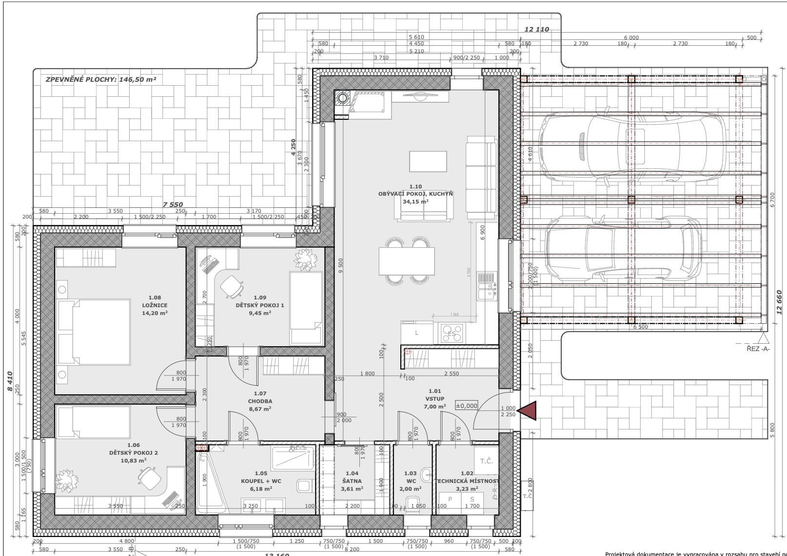
Dispozice domu je promyšlená do posledního detailu. Klidová část nabízí tři samostatné ložnice, které jsou chytře odděleny chodbou od hlavní obytné zóny. Srdcem domu je prostorný obývací pokoj propojený s kuchyní, kde přirozeně vzniká prostor pro rodinný život, setkávání s přáteli i klidné večery u krbu. Nechybí koupelna s vanou i sprchovým koutem, samostatná toaleta ani praktická technická místnost.
Dům byl navržen a realizován s mimořádným důrazem na kvalitu, funkčnost a dlouhodobý komfort. Z obytných pokojů je přímý vstup na velkorysou terasu s výhledem do okolní přírody, která se stane přirozeným prodloužením obytného prostoru.
Samozřejmostí jsou moderní technologie a detaily, které výrazně zvyšují komfort každodenního života:
bezbariérový přístup
elektrické venkovní žaluzie
příprava na kamerový systém
venkovní osvětlení domu
příprava na nabíjení elektromobilu
požární hlásič
Vytápění je řešeno tepelným čerpadlem s podlahovým vytápěním, které v kombinaci s energetickou třídou B zajišťuje nízké provozní náklady a vysoký uživatelský komfort. Atmosféru domova navíc podtrhují krbová kamna v obývacím pokoji.
Parkování je pohodlně řešeno až pro tři vozidla přímo před domem.
Dům je napojen na veřejný vodovod, elektřinu, odpad je řešen domovní ČOV.
Těrlicko patří dlouhodobě mezi nejvyhledávanější lokality pro bydlení – a to nejen díky krásné přírodě, ale i možnostem aktivního odpočinku. Koupání, vodní sporty, rybaření i procházky v okolní krajině jsou zde samozřejmostí.
Zároveň oceníte výbornou dostupnost občanské vybavenosti i autobusovou zastávku vzdálenou pouhých 200 metrů, s přímým spojením do Havířova, Českého Těšína a Třince.
Tento dům není jen nemovitost.
Je to promyšlený domov pro lidi, kteří vědí, co chtějí – kvalitu, klid a dlouhodobou hodnotu.
Celková výměra pozemku: 1 466 m²
Zastavěná plocha domu: 136 m²


Ing. Lokosová Renáta
FALCON REALITY
Svornosti 2, Havířov Město (Magistrát města Havířova, budova H)
tel: 774 741 666
www.falconreality.cz
www.lokosovarenata.cz
Cena nemovitosti není to, co prodává, pomůžu vám najít její skutečnou hodnotu.
Jmenuji se Renáta Lokosová a do oblasti realit jsem pronikla v roce 2004 s jasnou vizí - prodávat nemovitosti s úctou k zákazníkovi a osobním přístupem. Tato cesta se ukázala jako klíčová ve všech oblastech realitních služeb.
Zaměřuji se na Moravskoslezský kraj, ráda se s vámi potkám v mé kanceláři v Havířově, ale působím v rámci celé České republiky nejen jako makléřka, ale i na odborných konferencích.
S důvěrou se na mě můžete obrátit při prodeji vaší nemovitosti, případně s jakoukoliv její etapou. Pomůžu vám s odhadem ceny nemovitosti, znaleckým posudkem, energetickým průkazem, profesionální prezentací vaší nemovitosti při prodeji - nafocení profesionálním fotografem a s tím související home stagingem, videoprezentací s možností záběrů z dronu.
Díky 3D scanu je možné navštívit nemovitost formou virtuální prohlídky a následné kroky vedoucí k prodeji je možné také zajistit vzdáleně. Tuto službu, kompletně bezkontaktního prodeje, nebo nákupu nemovitosti využívají i klienti ze zahraničí.
Chcete vědět víc o světě nemovitostí přečtětě si mé články.
Reference mých klientů jsou pro mě skvělou zprávou o tom, že profesionální přístup, při kterém si zakládám na svém dobrém jménu a pověsti, skutečně funguje.
Jestli stále váháte, pojďme si krátce zavolat. Minimálně získáte můj názor a nový pohled na vaši nemovitost.